Casa indipendente in vendita

Persico Dosimo, Via Porcellasco (Persico) - Persico
€ 135.000
Prezzo aggiornato
6 locali 6 locali
400 Mq 400 Mq
3 bagni 3 bagni

Casa indipendente in vendita

Persico Dosimo, Via Porcellasco (Persico) - Persico

Descrizione annuncio

CREMONA - PERSICO DOSIMO - Casa indipendente di sei locali su più livelli completa di terrazza, giardino privato, due box auto e terreno di circa 400 mq.

Nel comune di Persico Dosimo, precisamente in Via Porcellasco, proponiamo in vendita una casa indipendente di ampie dimensioni, disposta su più livelli e caratterizzata da ambienti spaziosi e ben distribuiti, ideali per chi desidera una soluzione abitativa confortevole e completa di spazi esterni vivibili.

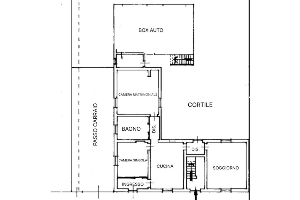
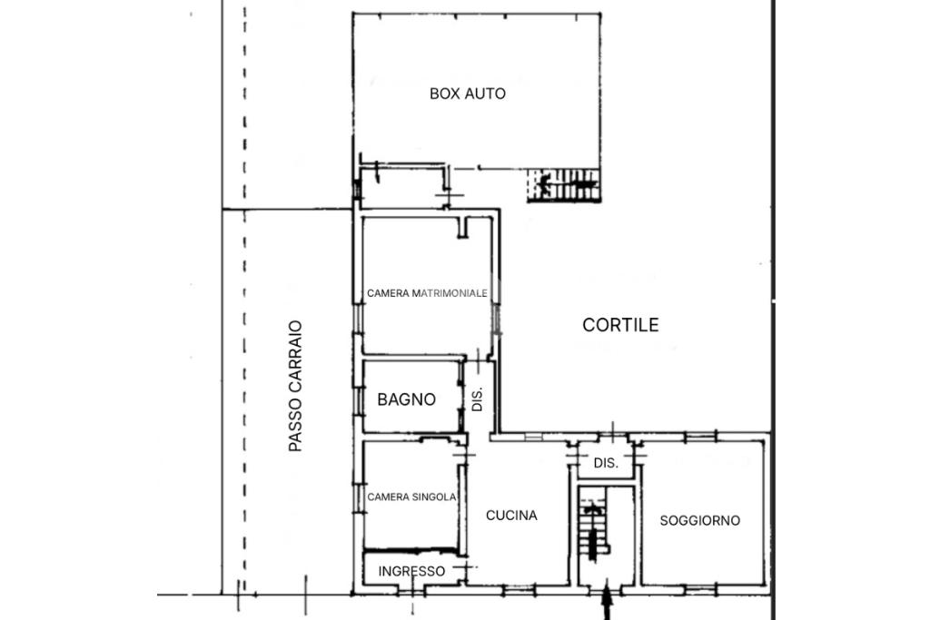
L’abitazione si apre su un comodo ingresso che conduce al piano terra, dove si trovano una cucina e un soggiorno in ambienti separati e ben definiti.

Attraverso un disimpegno si accede alla zona notte composta da una camera matrimoniale, una camera singola e un bagno finestrato dotato di vasca da bagno.

Dal piano terra, tramite una porta situata tra la cucina e il soggiorno, si accede al grande cortile esterno, perfetto per trascorrere momenti di relax all’aperto.

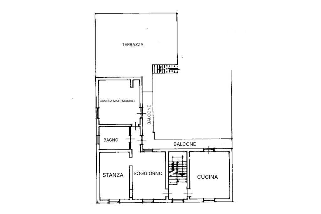
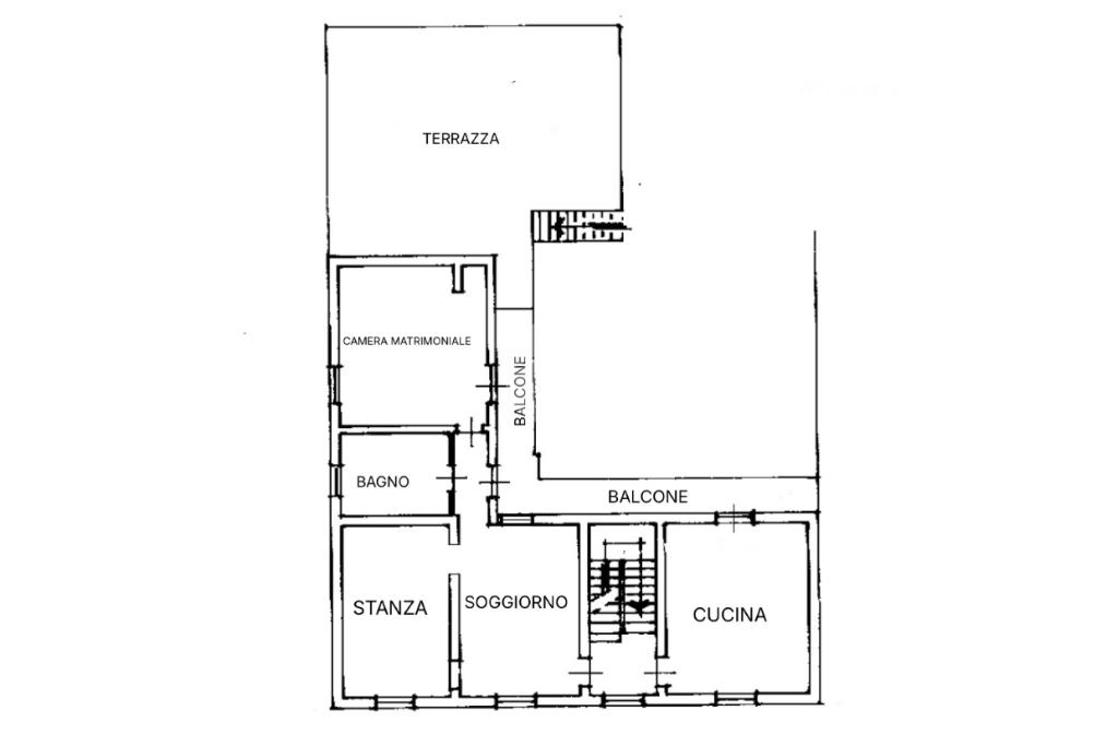
Salendo al piano primo tramite la scala interna, si trova un’ulteriore zona abitativa composta da una spaziosa cucina con accesso diretto al balcone, un soggiorno separato e luminoso, e un ambiente aggiuntivo ideale come sala da pranzo.

Un comodo disimpegno, anch’esso dotato di porta finestra con uscita sul balcone, conduce alla zona notte, composta da una camera matrimoniale ampia e luminosa, anch’essa con accesso diretto all’esterno, e da un bagno finestrato dotato di vasca da bagno.

Il balcone, raggiungibile dalla cucina, dal disimpegno e dalla camera matrimoniale, conduce alla terrazza esterna, da cui si accede, tramite scale, al cortile sottostante.

Al secondo ed ultimo piano, anch’esso collegato internamente, si trova un’ulteriore camera da letto servita da un bagno finestrato con box doccia e da uno spazio utilizzabile come soffitta.

Completano la proprietà due box auto, accessibili tramite l’ingresso carraio privato.

La casa necessita di alcuni interventi di ristrutturazione, ma si distingue per la sua ottima posizione, vicina ai principali servizi, e per la funzionale connessione tra gli spazi interni ed esterni, che ne fanno una soluzione ideale per famiglie o per chi desidera vivere in un contesto tranquillo senza rinunciare alla comodità.

Mostra tutto

Nelle vicinanze

Ricariche auto elettriche Ricariche auto elettriche
CREMONA Maristella AVIS | ENELX
2,8 Km
Farmacia Farmacia
Farmacia di Persichello e di Leggeri Marco
930 m
Negozi Negozi
Lubrano Aurora
20 m
Papetti Market
900 m
Mignon
960 m
Bar Bar
Bar Sabrina
890 m
Bar Sport Paola
920 m
Juliette 96
2,9 Km
Ristoranti Ristoranti
Pulcinella
120 m
Osteria La Corte Bassa
920 m
Pizzeria Pizza & Sfizi
930 m
Villa Calciati
2,7 Km
Bistekkina
2,8 Km
Mostra tutto

Caratteristiche

Rif.:
61141160
Piano:
Su più livelli di 2
Totale piani:
2
Box:
2
Balconi:
1
Terrazzi:
1
Mostra tutto
Prezzo Prezzo
€ 135.000
Rata mutuo Rata mutuo
€ 636 / mese
Proponi il tuo prezzoProponi il tuo prezzo

Classe Energetica

G
G
G
G
G
G
G
G
G
Anno di costruzione:
1920
Riscaldamento:
Autonomo
Tipo impianto:
A radiatori
Tipo alimentazione:
Metano

Prezzo ridotto di €1 (13%%)

Ti interessa visionare l'immobile?

Fissa un appuntamento  Fissa un appuntamento

Richiedi informazioni

Clicca su Leggi per aprire l'informativa
* Questi campi sono obbligatori

Calcola il tuo mutuo

Semplice e senza impegno
Anticipo

( % )
Mutuo

( % )

pochi semplici passi

inserisci i tuoi dati
Questionario completato
Grazie per aver richiesto un appuntamento senza impegno con un nostro Consulente del Credito e Assicurativo.

Hai inserito correttamente tutti i dati necessari e a breve riceverai una e-mail con un link da convalidare per inviare i tuoi dati.
Affiliato
Rete Ghinaglia Srl
Via Ferruccio Ghinaglia, 75 26100 Cremona (CR)

Il nostro staff


  • Giulia Bettoni
    Coordinatrice

  • Giancarlo Maggio
    Collaboratore

  • Abdelmoine Romdhani
    Collaboratore

  • Gabriel Tiraboschi
    Affiliato
Via Ferruccio Ghinaglia, 75 26100 Cremona (CR)
Zona: Cremona-Via Ghinaglia
Mostra su mappa
Orari: 09 -12:30 / 14:30 - 20
Affiliato
Rete Ghinaglia Srl
Via Ferruccio Ghinaglia, 75 26100 Cremona (CR)

2026 Tecnocasa Franchising S.p.A. - P. IVA 08365160152 - Via Monte Bianco 60/A 20089 Rozzano (MI). Ogni agenzia ha un proprio titolare ed è autonoma. Privacy policy | Policy utilizzo | Cookie policy